Villa singola in vendita

Massa, Via Gioacchino Rossini - Ronchi
Informazioni in agenzia
8 locali 8 locali
345 Mq 345 Mq
4 bagni 4 bagni

Villa singola in vendita

Massa, Via Gioacchino Rossini - Ronchi

Descrizione annuncio

Ronchi - A pochi passi dal mare, in una posizione esclusiva, proponiamo villa singola unica nel suo genere allo stato grezzo su tre livelli immersa in un ampio giardino per pace e tranquillità.

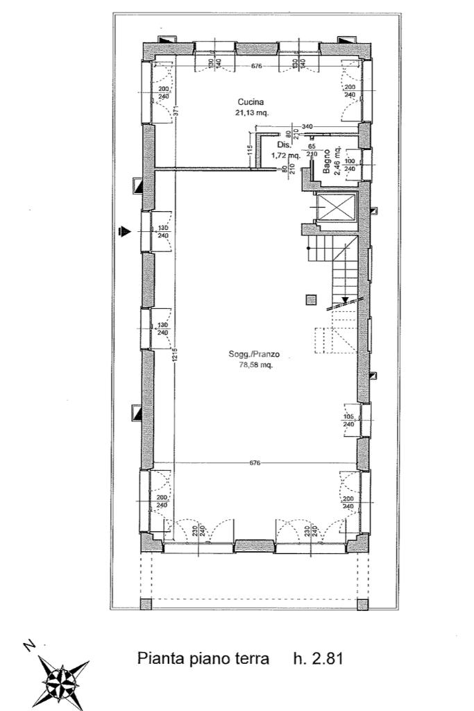
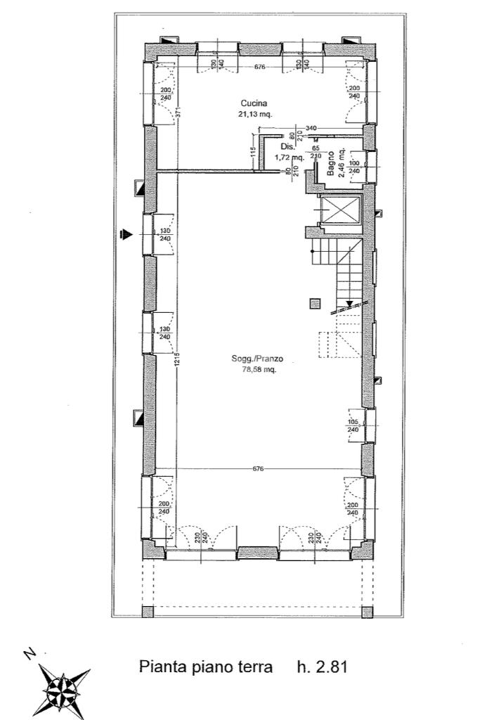
La soluzione si presenta con ingresso all'ampio giardino da cui si accede al piano terra dove è presente una generosa sala personalizzabile a proprio piacimento con la possibilità di installare un camino.
Completa la zona giorno un cucina abitabile con sfogo direttamente sul giardino ed un primo bagno di servizio.

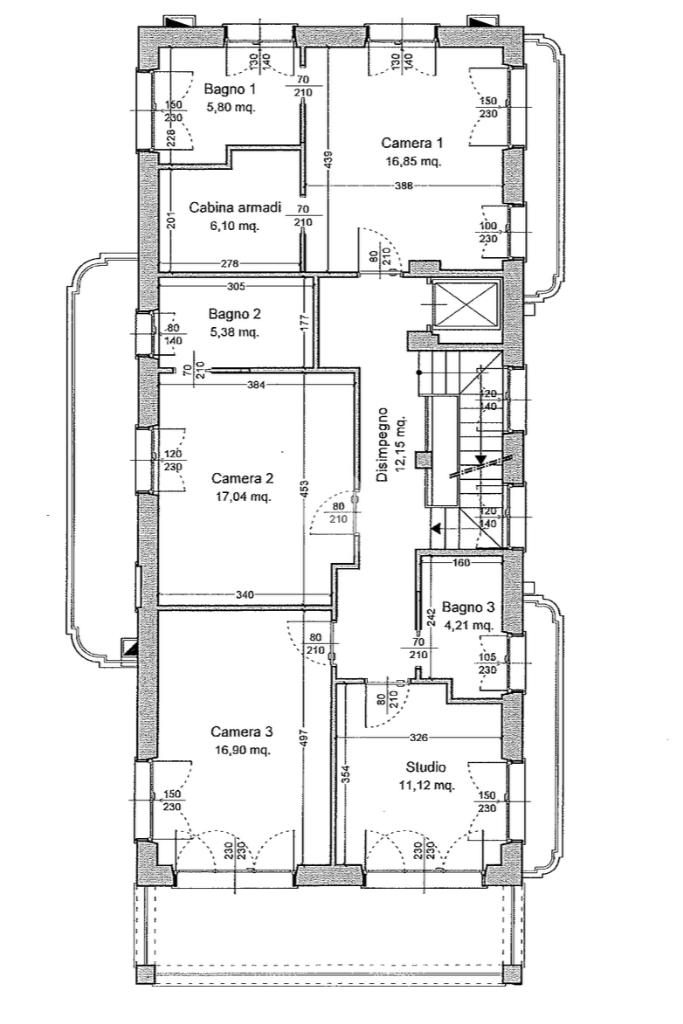
Tramite scala a sbalzo o ascensore, si giunge al primo piano dove la zona notte è composta da quattro camere da letto e tre bagni tutti finestrati; sono presenti due balconi ed un terrazzo che affaccia verso la spiaggia.

Fiore all’occhiello della proprietà è la mansarda all’ultimo piano, attualmente allo stato grezzo: uno spazio autentico e riservato, pronto a trasformarsi in base alle tue esigenze. Può diventare una confortevole suite per gli ospiti, intima e indipendente, oppure uno spazio privato perfetto come studio, area hobby o retraet personale dove ritagliarsi momenti di relax.

Questa villa situata in una posizione esclusiva, tranquilla e al tempo stesso vicina a tutti i principali servizi, un perfetto equilibrio tra privacy e comodità. Una rara opportunità per chi desidera vivere il mare senza rinunciare alla quiete e al prestigio. La proprietà, circondata da spazi esterni privati, rappresenta la soluzione ideale sia come residenza principale che come dimora estiva di alto livello.

Si evidenzia che la soluzione è allo stato grezzo da poter personalizzare a seconda dei propri gusti personali e alcune immagini sono puramente indicative.

Mostra tutto

Nelle vicinanze

Trasporto pubblico Trasporto pubblico
Direzione Monti Viale Roma/Via Rossini
Direzione Monti Viale Roma/Via Rossini
360 m
Direzione Mare Viale Roma/Via Rossini
Direzione Mare Viale Roma/Via Rossini
370 m
Ricariche auto elettriche Ricariche auto elettriche
Charge&CarRental Ristorante Fusion Club
220 m
Scuole Scuole
Scuole
200 m
Scuola Media Statale "Paolo Ferrari"
880 m
Colonia Torino
2,2 Km
Scuola Elementare Bondano
2,4 Km
Scuola Primaria Rinchiostra
2,5 Km
Farmacia Farmacia
Farmacia Dei Ronchi Dr. C. Chemello
710 m
Farmacia Comunale n.2
1,0 Km
Farmacia Nobile
1,3 Km
Farmacia
1,6 Km
Farmacia Gibellini
2,2 Km
Ospedali Ospedali
ASL n. 1
1,5 Km
Nuovo Ospedale Apuano
2,2 Km
Pronto Soccorso
2,3 Km
Don Gnocchi - Santa Maria alla Pineta
2,9 Km
Supermercati Supermercati
Supermercati
610 m
Sigma
1,5 Km
Esselunga
2,4 Km
Lidl
2,9 Km
Negozi Negozi
Carrefour Express
250 m
Negozi
340 m
Panetteria focacceria passaparola
840 m
Il panificio
850 m
Champions
1,2 Km
Bar Bar
Kokomo
460 m
Kasamia ristorante winebar
1,2 Km
Garten Bar
1,2 Km
Bar Tirreno
1,2 Km
Bar
1,3 Km
Ristoranti Ristoranti
La Casina
560 m
La Grande Cina
1,2 Km
Baria Delia
1,2 Km
Pizzeria Calcetto Road
1,3 Km
Al pontile
1,3 Km
Mostra tutto

Caratteristiche

Rif.:
61209532
Piano:
Terra di 3 con ascensore
Totale piani:
3
Posti auto:
3
Balconi:
2
Terrazzi:
2
Mostra tutto
Prezzo Prezzo
Informazioni in agenzia
Spese annue Spese annue
€ 0
Proponi il tuo prezzoProponi il tuo prezzo
Immobile valutato con T·Valuta

Classe Energetica

Questo immobile è esente da classe energetica
Anno di costruzione:
2025
Riscaldamento:
Assente

Ti interessa visionare l'immobile?

Fissa un appuntamento  Fissa un appuntamento

Richiedi informazioni

Clicca su Leggi per aprire l'informativa
* Questi campi sono obbligatori
Affiliato
Studio Marina Di Massa Srl
Via San Leonardo, 480/O 54100 Massa (MS)

Il nostro staff


  • Irene Bondielli
    Coordinatrice

  • Giovanni Micocci
    Responsabile

  • Dario Meski
    Collaboratore

  • Giuseppe Ruberti
    Affiliato
Via San Leonardo, 480/O 54100 Massa (MS)
Zona: Marina di Massa
Mostra su mappa
Orari: Da LUN a VEN: 9.00 - 12:30 // 15:00 -19:30 SAB: 9:00 - 12:30 // 15:00 - 18:30.
Affiliato
Studio Marina Di Massa Srl
Via San Leonardo, 480/O 54100 Massa (MS)

2026 Tecnocasa Franchising S.p.A. - P. IVA 08365160152 - Via Monte Bianco 60/A 20089 Rozzano (MI). Ogni agenzia ha un proprio titolare ed è autonoma. Privacy policy | Policy utilizzo | Cookie policy